CLASSE FACTORY クラッセ・ファクトリー Renovation&Interior

OPEN HOUSE

完成見学会

京都府宇治市琵琶台2丁目 11-11

木の温もりと抜け感が調和する、
上質なジャパンディの住まい

2025年11月1日(土)~終了日未定

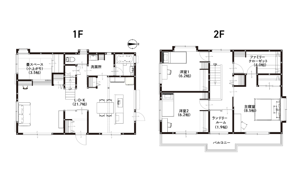
抜け感のある空間設計

開放感をもたらす造作のガラスパーティションとストリップ階段による抜けのある空間を設計。光と風が通り抜け、家族の気配を感じながらも心地よい距離感で暮らせる、のびやかな住まいになりました。

上質で落ち着きのあるジャパンディデザイン

自然素材の温もりと洗練されたデザインを組み合わせたジャパンディデザインのインテリア。木の質感と和モダンが調和し、心安らぐ空間に。

その他の見どころ

  • ガラスと木の素材感を活かした、光が抜ける玄関ホールのデザイン
  • 小上がり畳と縦格子がつくる多用途なくつろぎスペース
  • 家事動線を工夫したストレスの少ない間取り設計
  • 大容量のファミリークローゼットによる収納力の充実
  • 間接照明と折上げ天井で上品に仕上げたリビング空間
  • 外壁面、屋根裏の断熱材はウレタンフォーム吹付断熱へと性能アップ
  • 躯体の補強として補強金物の新設、耐力壁の配置や壁量を見直し

敷地面積

183.05m²

55.37坪

延床面積

136.8m²

41.38坪

1F床面積

68.2m²

20.63坪

2F床面積

68.6m²

20.75坪

日時・会場のご案内

日時
2025年11月1日(土)~終了日未定 9:00~18:00
会場
京都府宇治市琵琶台2丁目 11-11

  • ■お客様ご自身の体調が優れない場合や発熱など風邪の諸症状が見られる場合は、誠に恐縮ですが、迷わずキャンセルのご判断をお願いいたします。
    当日、直前であっても問題ございませんので、必ず事前にご連絡ください。
  • ■感染予防および拡大防止の為、スタッフはマスク着用で対応させていただきます。
  • ■入室の際は、アルコール消毒等の使用をお願いしています。
  • ■”使い捨て手袋”や”使い捨てスリッパ”等の着用をお願いしています。
  • ■雨天時以外の場合は雨戸や窓を開けて換気を十分にした情況で案内させていただきます。
  • ■ご案内の際にはゆとりを持つため1組ずつの入れ替え制でのご案内をさせていただきます。
    ※入室まで少しお待ち頂く事があるかもしれません。
  • ■見学会期間終了後のハウスクリーニングの際には消毒をさせていただいております。

ご予約はこちら

見学をされるにあたってのお願い

  • ■ 見学会にご来場いただく際は必ずご予約をお願い致します。
  • ■ 本見学会は家づくりをお考えの方のみのご予約の受付となります。ご了承くださいませ。
  • ■ ご予約なしでご来場頂いた際、ご案内をお断りさせて頂く場合がございますので予めご了承下さい。
  • ■ 傷や汚れなどを未然に防ぐ為の手袋とスリッパのご着用にご協力の程宜しくお願い致します。
  • ■ 展示家具や備品等にお手を触れないようにお願い致します。ソファや椅子などに座ったり、動かすこともご遠慮下さい。
  • ■ 当日はスタッフがご案内させて頂きます。ご質問やご相談等ご遠慮なくお申しつけ下さい。

    ご来店回数 必須
    お名前 必須
    ふりがな 必須
    郵便番号 必須
    ※郵便番号を入れると住所が途中まで
    自動入力されます
    住所 必須
    お電話番号 必須
    メールアドレス 必須
    予約する見学会 必須
    ご来場希望日時(第一希望) 必須
    ご来場希望日時(第二希望) 必須
    ご来店希望日時(第三希望) 必須
    ご来店予定人数 必須
    クラッセファクトリーを
    知ったきっかけ 必須
    ▼「知人からの紹介・口コミ」のご紹介者様のお名前を入力してください
    お問合せ内容
    入力内容の確認 必須

    下記「個人情報の取扱いについて」をご確認ください。 送信ボタンを押すことで、個人情報の取扱いについて同意したとみなします。

    個人情報の取扱いについて

    クラッセ住宅販売株式会社(以下、当社といいます)は、お客様の個人情報の適切な取扱い及び保護が、当社にとって社会的責務であると考えております。当社は、当社が取得する個人情報(当社のウェブサイトをご利用いただきましたお客様からご提供いただきました個人情報を含みます)を、この個人情報の保護に関する基本方針(以下、この基本方針といいます)に基づき、適切に取扱い、保護に努めてまいります。

    1.個人情報の定義

    個人情報とは、以下のような生存する特定の個人を識別できるものをいいます。
    • 氏名、住所、生年月日、性別、職業、電話番号、メールアドレス等。
    • その情報のみでは特定の個人を識別できないが、他の情報と容易に照合することができ、この照合により特定の個人を識別できることとなる情報。

    2.個人情報の利用・第三者への提供

    • (1)お客様の個人情報は、次の者が利用できるものとします。
      • 当社及び当社子会社
      • 当社親会社及びその子会社
      • a、bの業務の委託先
    • (2)お客様の個人情報の利用目的は、次のとおりとします。
      • 当社の取り扱う住宅用建材商品、ビル用建材商品、エクステリア商品、住宅設備機器等(以下、当社商品といいます。)に関連し、お客様にとって魅力的で、価値のあるサービスをご提供するため。
      • お客様から請求された当社商品に関連する資料、カタログをお届けするため。
      • お客様から登録いただいたショールーム来場時のご相談商品や建築工法等に関して、最適なプランをご提案するため。
      • お客様に対してダイレクトメール、電子メール等による情報(当社商品に関連するメールマガジンなど)をご提供するため。
      • キャンペーン等で当選したプレゼントをお客様にお届けするため。
      • お客さまの外壁建材選定時に、他のお客さまの施工物件情報をお知らせするため。
      • お客さまのご承認の下に、当社のお取引先に紹介させていただくため。
      • 商品やサービスについてお客さまの利用状況や満足度を調査するため。
      • 当社もしくは当社商品に関連してお客様から寄せられたご意見、ご要望にお応えするため。
      • 当社商品のアフターサービス、メンテナンス等、その他お客様と接触するため。
    • (3)お客様の個人情報を当社及び上記各社以外の者が利用する必要が生じた場合及び上記の利用目的以外に利用する必要が生じた場合には、下記3.b、d、e、f、g、に該当する場合を除き、事前にお客様に利用者及び利用目的を連絡し、お客様の事前の同意を得た上で、提供または利用させていただきます。
    • (4)当社にご連絡いただき、ご質問やご意見等をお受けした際に、電話の録音等の記録を取らせていただく場合がございます。記録させていただいた内容につきましては、お話いただきました内容の確認や、よりよい応対業務を提供するために利用させていただきます。

    3.個人情報の開示先の範囲

    お客様の個人情報は、次のいずれかに該当する場合を除き、いかなる第三者にも開示、提供いたしません。
    • お客様から同意をいただいた場合。
    • お客様個人が識別できない状態にしている場合。
    • 上記2.(1) a、b、cに記載されている会社(以下、個人情報提供先といいます。)に個人情報を提供する場合。
    • 人の生命、身体または財産の保護のために必要がある場合であって、お客様の同意を得ることが困難であるとき。
    • 公衆衛生の向上または児童の健全な育成の推進のために特に必要がある場合であって、お客様の同意を得ることが困難であるとき。
    • 国の機関若しくは地方公共団体が法令の定める事務を遂行することに対して協力する必要がある場合であって、情報主体の同意を得ることにより当該事務の遂行に支障を及ぼすおそれがあるとき。
    • 法令に基づく場合。

    4.個人情報の管理

    • (1)当社は、社員に対する教育啓蒙活動を実施するほか、個人情報を取り扱う部門ごとに管理責任者を置き、個人情報の適切な管理に努めます。
    • (2)当社は、お客様の個人情報への不正なアクセスや漏洩、滅失、毀損等を防止するため、当社のウェブサイト等のセキュリティの維持に努めます。
    • (3)当社は、個人情報提供先との間で機密保持契約を行い、お客様の個人情報について、適切な取扱い及び保護を行わせるよう努力し、漏洩、第三者への再提供、開示、上記2.(2)に記載されている利用目的の範囲外での利用の防止を図ります。

    5.個人情報の開示、訂正、追加、利用停止、消去

    • (1)当社に保有されているお客様の個人情報について、お客様ご自身が、開示、訂正、追加、利用停止、消去の各請求を要望される場合は、当社まで直接ご請求下さい。個人情報漏洩防止、正確性、安全性の確保の観点から、法令の規定により特別な手続が定められている場合を除き、遅滞なく必要な調査を行い、当該ご請求がお客様ご自身によるものであることが確認できた場合に限り、法令の定めに基づき遅滞なくお客様の個人情報の開示、訂正、追加、利用停止、消去を行います。
    • (2)上記の開示等の実施、不実施については、ご請求のあったお客様に対して遅滞なくご連絡いたします。なお、不実施の場合は、その理由を説明するよう努めます。

    6.個人情報提供先への個人情報の提供

    • (1)個人情報提供先に提供するお客様の個人情報の範囲は、お客様から特に申し入れがある場合を除いて、全ての個人情報を対象といたします。
    • (2)個人情報提供先へのお客様の個人情報の提供は、紙、電子データの伝送、磁気テープの引渡し、サーバーへのアクセスのいずれかの方法で行います。
    • (3)お客様ご自身より、個人情報提供先への提供を停止するようご請求があった時は、法令の定めに基づき遅滞なくお客様の個人情報の個人情報提供先への提供を停止いたします。
    • (4)上記の停止の実施、不実施については、ご請求のあったお客様に対して遅滞なくご連絡いたします。なお、不実施の場合は、その理由を説明するよう努めます。

    7.免責

    • (1)当社のウェブサイトのご利用に当たり、お客さまにID及びパスワードをご登録いただいている場合には、これらの管理に十分ご注意ください。これらの不正使用による損害については、当社は一切の責任を負いません。また、お客さまが虚偽の事実または他人の情報をご登録された場合等には、当社は当該ID及びパスワードのご利用を停止することがありますので予めご了承ください。
    • (2)当社は、当社のウェブサイトにリンクされている他のウェブサイトにおけるお客様の個人情報等の保護、取扱い等については、一切責任を負うものではありません。

    8.関係法令及びその他の規範の遵守

    当社は、お客様の個人情報に関係する日本国の法令を遵守致します。

    9.この基本方針の変更及び告知

    この基本方針の内容は、必要に応じて変更することがあります。お客様へは、その都度ご連絡することはできませんので、この基本方針の最新の内容は、当社のウェブサイトに掲載している最新版をご参照ください。

    10.クッキー(Cookie)の利用

    • (1)当社のウェブサイトには、お客様が再度ウェブにアクセスされた時に一層便利に利用していただけるよう、「クッキー」と呼ばれる技術を使っているページがあります。 「クッキー」とは、ウェブサーバがお客様のコンピュータを識別する業界標準の技術です。「クッキー」はお客様のコンピュータを識別することはできますが、お客様が個人情報を入力しない限りお客様自身を識別することはできません。なお、お使いのブラウザによっては、その設定を変更してクッキーの機能を無効にすることはできますが、その結果ウェブページ上のサービスの全部または一部がご利用になれなくなることがあります。

      用語の説明【クッキー】

      ウェブでホームページを閲覧している側のコンピュータを特定する方法の一つです。 クッキーとは、ウェブサーバーからお客様のブラウザ、ハードディスクに送信する小規模な情報のことで、お客様のディスクにファイルとして蓄積されることもあります。アクセス者側にサーバーの情報を格納するのが目的で、一度そのウェブページから離れても、再びアクセスした際にサーバー側がアクセス者のブラウザ、ハードディスクに保管しておいた「クッキー」を読みとることでアクセス者のコンピュータを特定できる仕組みです。クッキーを使用することにより、お客様のコンピュータを識別することができますが、お客様が個人情報を入力しない限りお客様ご自身を識別することはできません。
    • (2)当社では、以下のような場合にクッキーで得たデータを使用する事があります。
      • より満足いただけるようにコンテンツを改廃したり、個々のお客様に合わせてカスタマイズされたサービスを提供する場合。
      • お客様がどのようなサービスに興味をお持ちなのか分析したり、サイト上での効果的な広告の配信のために利用させていただく場合。

    ※ 当社では、サイトの利用状況を把握し、より良いホームページをご提供するために、グーグル株式会社が提供しているGoogle Analyticsのサービスを利用しております。 なお、Google Analyticsについて詳しくお知りになりたい方は、Google Analyticsのプライバシーポリシーをご確認ください。

    11.セキュリティ

    当社は、お客さまの個人情報への不正なアクセスや漏洩等を防ぐ為、当社のウェブサイトのセキュリティの維持に努めます。当社のウェブサイトは、インターネット上で情報を自動的に暗号化して通信を行うセキュリティ機能(SSL)をフォーム送信に採用しております。ただし、SSL機能は対応ブラウザが限られておりますので、お客様の使用されるブラウザをご確認ください。

    12.お問合せ窓口

    上記内容に関してご質問などがございましたら、下記連絡先にご連絡ください。
    クラッセ住宅販売株式会社 住所:〒611-0021 京都府宇治市宇治壱番128F TEL:0774-25-3222 受付時間 9:00~18:00 定休日:水曜日

    お電話でお問い合わせはこちら

    0120-500-776

    事前予約でスムーズにご相談いただけます

    無料相談

    私たちについて

    サービス

    店舗